Kuchnia, angielka 9,2kW bez płaszcza wodnego, Jawor (nieobudowana, kolor: biało brązowy) - spełnia anty-smogowy EkoProjekt 25980264
Piecokuchnie do gotowania i ogrzewania domu – dostępne modele.
Poniżej znajdziesz kategorie: z płaszczem wodnym, kaflowe, węglowe oraz na drewno i węgiel z piekarnikiem. Ten model jest produktem archiwalnym i nie wróci do sprzedaży.
Wybierz kategorię i zobacz alternatywy dostępne od ręki.
Dla osób, które chcą podłączyć piecokuchnię do instalacji CO i ogrzewać również grzejniki.
Piecokuchnie z płaszczem wodnym
Klasyczny wygląd, wysoka bezwładność cieplna i długo trzymające ciepło kafle.
Kuchnie kaflowe
Stabilne grzanie i długi czas pracy – gdy palisz głównie węglem.
Kuchnie węglowe
Gotowanie i pieczenie w jednym urządzeniu + możliwość palenia drewnem lub węglem.
Kuchnie na drewno i węgiel z piekarnikiem
Proste i skuteczne rozwiązanie do gotowania i ogrzewania – gdy palisz głównie drewnem.
Piece kuchenne na drewno
Kuchnia, angielka 9,2kW bez płaszcza wodnego, Jawor (nieobudowana, kolor: biało brązowy) - spełnia anty-smogowy EkoProjekt.
Kuchnie Jawor nie są już produkowane, a wszystkie modele zostały u nas wycofane ze sprzedaży, ponieważ nie ma gwarancji dostępności części zamiennych oraz serwisu.
Kuchnie na drewno i węgiel z piekarnikiem
Ostatnie sztuki!
Podana moc jest przy opalaniu drewnem. Po uzyskaniu Ekoprojektu paliwem podstawowym jest drewno. Poprzednia moc była wyższa przy opalaniu węglem kamiennym.
DANE TECHNICZNE:
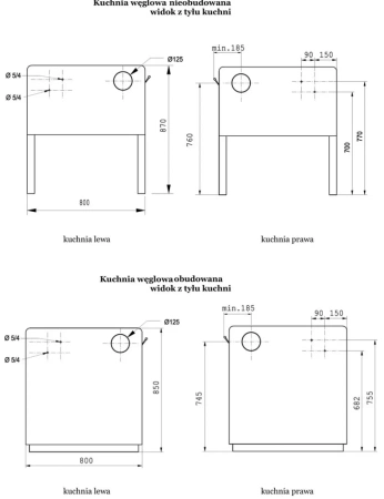
Wymiary gabarytowe
Wysokość mm 850
Szerokość mm 800
Głębokość mm 600
Wymiary komory piekarnika
Wysokość mm 240
Szerokość mm 300
Głębokość mm 460
Pojemność piekarnika m3 0.033
Wymiary rusztu
Długość mm 270
Szerokość mm 150
Powierzchnia czynna m2 0.405
Wymiary płyty kuchennej
Długość mm 720
Szerokość mm 460
Powierzchnia płyt m2 0.335
Wymiary komory paleniska
Wysokość mm 170
Szerokość mm 150
Głębokość mm 390
Objętość komory paleniska m3 0.01
Moc nominalna kW 9.2
Sprawność płyty kuchennej % 26.4
Zdolność warnicza sek 1333
Sprawność cieplna % 66.2
Odległość od podłogi do środka otworu wylotowego spalin mm 745
Średnica otworu wylotu spalin mm 125
Średnica rury łączącej kuchnię z kominem mm 130
Pojemność pojemnika na węgiel dm3 18.0
Pojemność pojemnika na popiół dm3 8.8
Masa kuchni kg 130
Ten produkt spełnia kryteria anty-smogowego Ekoprojektu.
Kuchnia bez płaszcza wodnego (tak zwaną wężownicą).
Kuchnie z płaszczem wodnym można kupić klikając: TUTAJ
Przy zamówieniu proszę podać od której strony ma być wylot spalin do komina.
UWAGA: Piec jest sprzedawany w kolorze biało brązowym!
Przenośne, metalowe kuchnie przystosowane są do spalania paliw stałych (drewno), przeznaczone są do użytkowania w gospodarstwach domowych. Posiadają dużą trzyczęściową płytę kuchenną z jednym otworem, piekarnikktórego drzwiczki mają dużą szybę z termometrem. Kuchnie posiadają duży schowek do przechowywania naczyń, popielnik z regulatorem dopływu powietrza (intensywność palenia), przez który powietrze doprowadzane jest pod ruszt, schowek z szufladą na, która dzięki prowadnicom łatwo wysuwa się z wnęki. Na bocznej ścianie kuchni znajdują się dwie dźwignie przesłon spalin, umożliwiające kierowanie spalin w zależności od wykonywanych czynności na: "gotowanie" lub "pieczenie". Wszystkie elementy kuchni jak: przód, ściany boczne, piekarnik, drzwiczki popielnika i schowka, wykonane są z blachy stalowej emaliowanej. Kuchnie produkowane są w kolorze białym lub brązowym z wylotem spalin z prawej lub lewej strony, z możliwością podłączenia do komina z boku lub z tyłu kuchni. Za dodatkową opłatą na życzenie klienta istnieje możliwość wyprodukowania kuchni w dowolnym kolorze, zgodnym z paletą barw producenta emalii.
Firma zajmuje się produkcją kuchni i piecyków grzewczych od 1994 roku. Naszym celem jest dostarczanie wyrobów o wysokiej jakości wykonania. Dzięki dbałości i kontroli jakości na każdym etapie produkcji nasi klienci uzyskują produkty, które spełniają najwyższe kryteria rynku, natomiast stale unowocześniana linia produkcyjna zapewnia nam coraz wyższą wydajność idącą w parze z jeszcze wyższą jakością.
Wytwarzane przez nas kuchnie i piecyki grzewcze znajdują zastosowanie w gospodarstwach domowych, nie podłączonych do miejskiej magistrali gazowej. Linia produkcyjna jest elastyczna dzięki czemu możemy dokonać jej adaptacji do nowych kryteriów zapotrzebowania rynku. Łatwo jest nam sprostać oczekiwaniom klienta w zakresie modyfikacji wytwarzanych przez nas produktów, dzięki czemu możemy realizować nietypowe zamówienia odbiegające od naszej standardowej oferty.


















































